首页
>
造价员考试
>
真题题库
>
山东造价员考试
>
山东2013年造价员考试真题-《建筑工程编制与应用》
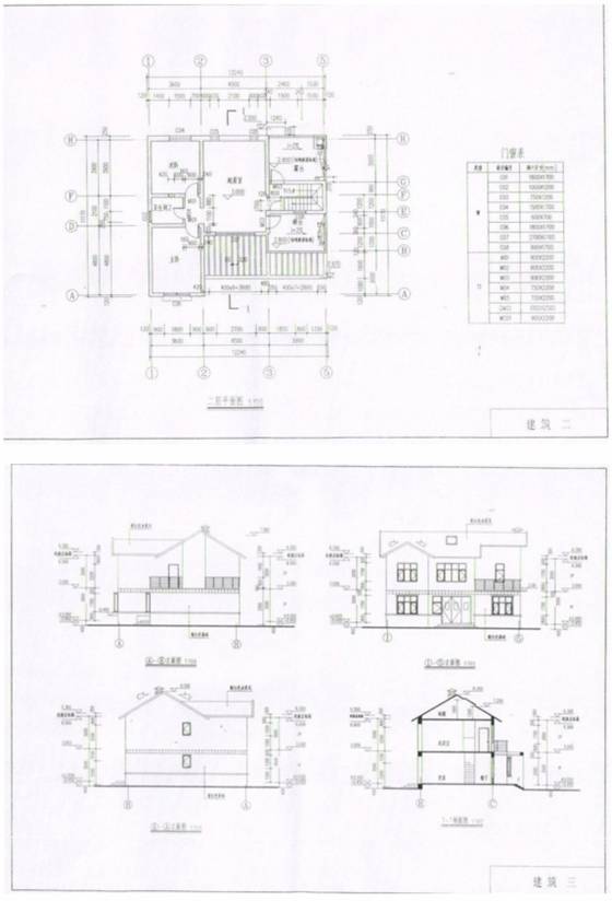
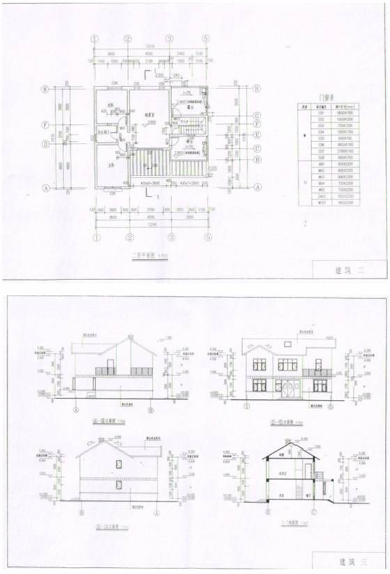
山东2013年造价员考试真题-《建筑工程编制与应用》
时间:2014-04-15 17:40:00 来源:无忧考网 [字体:
小
中
大
]
=造价员考试试题推荐=
查看造价员考试全部真题 >>
=造价员考试文档推荐=
查看造价员考试全部文档 >>
山东2013年造价员考试真题-《建筑工程.docx
立即下载Word高清文档,方便收藏和打印(505字)
编辑推荐:
下载Word文档
造价员考试山东热点文章排行榜